

KOCHI: The National Highways Authority of India (NHAI) has asked the project consultant to rework the alignment of the proposed six-lane Aroor-Edapally elevated highway project as it failed to take into account the Kochi Metro viaduct that would be crossing at the Palarivattom bypass junction.
“We’ve directed the DPR consultant to revise the alignment, incorporating the necessary changes, and submit the same within a month,” said a senior NHAI official.
The metro viaduct of the under-construction second phase, connecting JLN stadium with Infopark, passes above the Palarivattom flyover. It is the highest point in the 11.17-km long Pink Line, which has 11 stations – Jawaharlal Nehru (JLN) Stadium, Palarivattom Junction, Palarivattom Bypass, Chembumukku, Vazhakkala, Padamughal, Civil Station Junction, Cochin SEZ, Chittethukara, Kinfra and Infopark.
“It will be one of the highest sections of Phase-2. A special steel span of 60m will be constructed to facilitate the metro viaduct above the flyover,” said a KMRL official.
The NHAI asked the consultant to give provision for the viaduct crossover. While the alignment proposes parallel construction at Kundannoor and Vyttila, the consultant needs to study on the best proposal at Palarivattom bypass junction.
“We aim to implement the project at the earliest as an extension of the Aroor-Thuravoor elevated highway so as to ensure free flow of traffic,” the official said. The NHAI has completed 50% work of the 12.75-km-long Aroor-Thuravoor elevated highway project and is targeting to complete the constructions by February 2026.
As per the report submitted by Bhopal-based Highway Engineering Consultants Ltd, the DPR consultant, the project is expected to cost Rs 3,600 crore and would come along the existing NH 66 bypass, which witnesses heavy traffic.
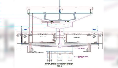
The project is being planned in a way so as to fit within the existing ROW (Right Of Way). Hence, there is no need for additional land acquisition, except small areas at the start and end points.
The 16.294-km long corridor will start before Oberon Mall near Edapally Junction (after the flyover towards the Alappuzha side) and end at Aroor Junction, just after the landing of the Thuravoor-Aroor elevated highway, which is currently under execution. There will be two ramps (up and down), providing connectivity to major junctions Vyttila and Madavana. The elevated corridor will run parallel to existing flyovers at Vyttila and Kundannoor.
A two-lane service road with paved shoulders will be provided for local traffic. Also, portal piers will be constructed at seven locations, the feasibility study report said.
The elevated flyover will facilitate speedy movement of long-distance vehicles and result in bifurcation of local and long-distance traffic.
Meanwhile, another key project – the four-lane corridor linking Willingdon Island with the Aroor-Edappally NH 66 bypass – is facing delay due to the Cochin Port Trust objecting to its initial alignment.
“Even after reworking the original alignment, the trust is raising objections over acquisition regarding 2.2 km of land at CIFT Junction, the starting point. They want the section to be shifted to seaside, which would increase the project cost by Rs 100 crore,” the NHAI official said.
The National Highways Logistics Management Ltd (NHLML) asked the trust to meet the additional expense of Rs 100 crore, but the latter refused.
The proposed corridor will commence from Swift Junction, Willingdon Island, and end near Maradu Market at Nettoor Junction.
The Swift Junction (starting point) and Nettoor (ending point) would be developed as grade-separated junctions, where conflicting traffic flows are kept apart usually by means of a bridge or tunnel to prevent traffic congestion.
The project will come as a big relief to the region as huge traffic congestion is currently experienced on the narrow two-lane Kundannoor-Thevara bridge.